RDH DESIGNS
ARCHITECTURE
Copyright © 2013  "RDH Designs"
REGISTERED MEMBER:
ARCHITECTURE
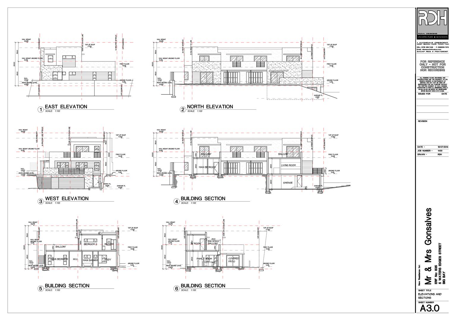
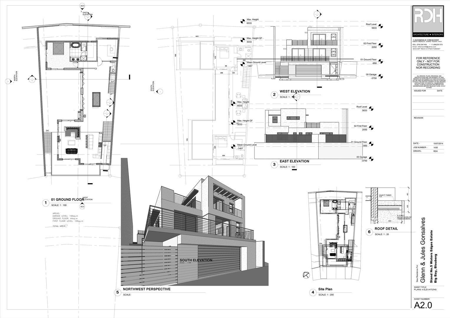
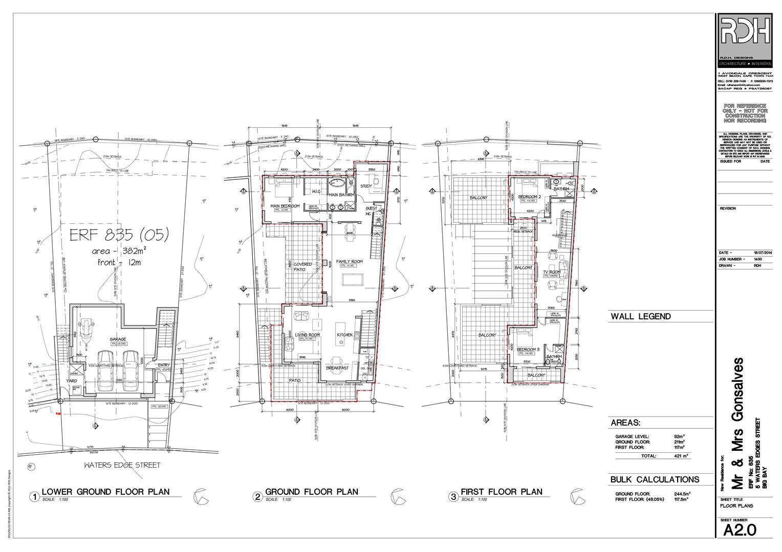
GONSALVES RESIDENCE
Not Constructed

Back
Next
Private Residence in Waters Edge Estate, Big Bay, Blouberg
The client for this project had very specific needs and wants in terms of the layout which had to be co-ordinated and planned to meet the estates strict spacial and massing guidelines. The home had a modern look with a mixture of different materials giving it a unique feel. Although building plans were in place and approved, unfortunately this project never got out of the ground.
<<   P R E V